Geschmackvoll ausgebauter ehemaliger Pferdestall mit schöner Obstwiese
Solides Gebäude, großzügige Raumgestaltung, schöne Aussichten
Verkauft
Zusammenfassung
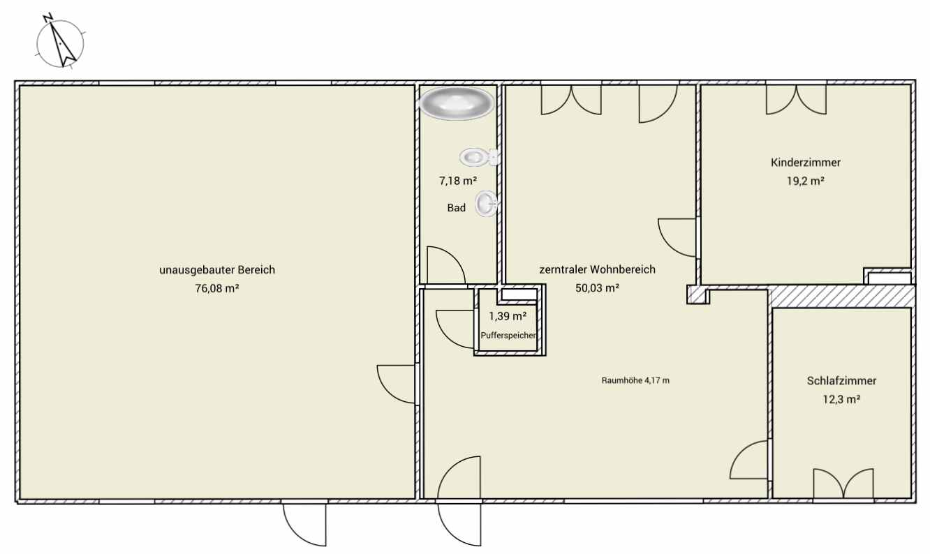
Ein qualitätvoll und mit gutem Geschmack sanierter und zum Wohnen ausgebauter Pferdestall am Rand einer ehemaligen Gutsanlage südlich der Peene. Innen großzügige, fast vier Meter hohe Räume und schöne Blicke in den alten Obstgarten. Das 2.750 m² große Grundstück geht nahtlos in eine weite, locker mit Bäumen bestandene Weidelandschaft über. Der Wohnbereich umfasst 90 m². Weitere ca. 250 m² könnten noch ausgebaut werden. Nach Berlin fährt man gut zwei Stunden, die ersten Sandstrände bei der Universitätsstadt Greifswald erreicht man in gut 30 min. An den langen Stränden Usedoms ist man in knapp einer Stunde.
English Summary
An old horse stable, converted in good quality and taste. Situated on the edges of a former estate south of river Peene and a good two hours north of Berlin. The first Baltic beach close to the University town of Greifswald is 30 min away. It takes about one hour to the longest sandy beaches of Germany on the island of Usedom. The converted living area comprises about 90 m². Further approx. 250 m² are still available for conversion. There are beautiful views to the old orchard through large arched windows from the spacious indoors with ceiling heights of almost 4 m. The plot with a size of 2,750 m² seamlessly merges into wide-open pastures loosely scattered with trees.
| Grundstücksfläche | 2705 m² |
| Baujahr | Ca. 1910 |
|
Ausgebaute Wohnfläche |
90 m² |
| Nutzflächen | ca. 250 m² |
| Heizung | Zentralheizung mit wasserführendem Kamin |
| Energie | Elektrizität und Gas im bzw. am Haus |
| Wasser/Abwasser | Gemeindewasser/Dreikammergrube |
| Endenergiebedarf | Energieausweis wird erstellt |
| Internet | DSL mit 16 MBit/s, 4G/LTE im Garten, demnächst Glasfaser mit bis zu 50 MBit/s, bzw. 1 GBit/s |
| Beschaffenheit | Eben |
| Bewuchs | Obstbäume, Laubbäume, Sträucher |
- Die Wiese südwestlich des Gebäudes
- Die Wiese südwstl. des Gebäudes ist vom Nachbarhaus aus einsichtig
- Die Bäume bieten Schutz und Schatten
- baufällige Schuppen am Südostgiegel des Gebäudes
- Die große Obstwiese hinter dem alten Pferdestall
- Blick über Obstgarten und Weiden in Richtung Neetzow
- Große Obstwiese hinter dem alten Pferdestall, Blick nach Osten
- Noch nicht ausgebauter Teil
- Ess- und Küchenbereich
- Wohnküche, eigentl. Eingangangstür, Tür in den unausgbauten Teil
- Großer zentraler Raum, Fenster zum Vorgarten, Stahlträger und Wasserführender Kamin
- Blick in den Obstgarten aus der Wohnküche, rechts ins Kinderzimmer
- Kinderzimmer zum Obstgarten
- Schöner Kachelofen
- Elternschlafzimmer
- Schlafzimmer, hochwertige Heizkörper, Tür in die Wohnküche
- zeitgemäßes Badezimmer
- Grundriss EG
- Dachboden über dem ausgebauten Bereich
- Blick nach Norden in Richtung Neetzow
- Blick nach Südwesten
- Straußenfarm am Eingang zum Ort
- Schloss Neetzow gleich um die Ecke
Trotz gewissenhafter Erstellung des Exposés, kann es zu Irrtümern kommen. Eine Haftung dafür schließen wir ausdrücklich aus. Der Zwischenverkauf bleibt vorbehalten. Die Verhandlung mit dem Verkäufer sind stets freibleibend, vorbehaltlich des Zwischenverkaufs sowie vorbehaltlich der Zustimmung des Verkäufers. Schadensersatzansprüche aus Beratungs-, Finanzierungskosten etc. werden nicht anerkannt bzw. übernommen.
























