Hof an der Kanalbrücke
mit ca. 2.150 m² großem Grundstück, Gartenhaus und weiteren Nebengelassen, gelegen an Kanal und Durchgangsstraße, 38 km nördlich des Berliner Stadtzentrums

Verkauft
Zusammenfassung
Keine 50 Straßenkilometer und knapp 1 h Fahrzeit (Auto wie Bahn) vom Berliner Zentrum, nicht weit jenseits des nördlichen Berliner Speckgürtels, wo die Landschaft schon weit und leer ist, liegt das märkische Straßen- und Kanaldorf Zerpenschleuse. Und direkt in der Mitte des Ortes, an der Kreuzung der Durchgangsstraße mit dem Wasserweg, auf einem 2.150 m² großen und sich weit von der Straße nach hinten erstreckenden Grundstück, liegt der zum Verkauf stehende Hof.
Das vermutlich in der zweiten Hälfte des 19. Jh. erbaute Wohngebäude hat eine Wohnfläche von ca. 190 m², bietet Platz für zwei Parteien und weiteres Ausbaupotential im DG und Spitzboden. Viele der originalen Bauelemente sind erhalten, gleichzeitig bedarf das Haus einer umfassenden Sanierung und Modernisierung. Weiterhin stehen auf dem Grundstück ein massives kleines, ehem. Stallgebäude, diverse Schuppen und Lauben, sowie am hinteren Ende ein Bungalow mit zwei Wohnräumen.
English Summary
Less than 50 kilometres by road and just under 1 hour’s drive (by car or train) from the centre of Berlin, not far beyond Berlin’s northern belt, where the countryside is already wide and empty, lies the road and canal village of Zerpenschleuse. And right in the middle of the village, at the intersection of the through road and the waterway, on a plot of land measuring 2,150 m² and extending far back from the road, lies the property offered here.
The residential building, presumably built in the second half of the 19th century, has a living area of approx. 190 m², offers space for two parties and further development potential in the attic. Many of the original building elements have been preserved, but at the same time the house needs extensive renovation and modernisation. Furthermore, there are a small, massive, former stable building, various sheds and arbours, as well as a bungalow with two living rooms at the rear end of the plot.
| Wohnhaus | 1-geschossig, mit teil-ausgebautem Dach |
| Baujahr | vmtl. zweite Hälfte 19. Jh. |
| Ausgebaute Wohnfläche | ca. 190 m² |
| Nebengebäude | Werkstatt/Stall, Laube, Bungalow |
| Wohnfläche Bungalow | ca. 30 m² |
| Nutzfläche insgesamt | ca. 300 m² |
| Heizung | Ofenheizung |
| Energie | Anschluss an das öffentliche Elektrizitätsnetz. Erdgasanschluss möglich |
| Wasser/Abwasser | Kommunale Trinkwasserversorgung / Anschluss an die Kanalisation. |
| Endenergiebedarf | Energieausweis wird erstellt |
| Internet | 5G, VDSL 250 mit bis zu 250 Mbit |
| Grundstücksfläche | ca. 2.150 m² |
| Beschaffenheit | eben . |
| Bewuchs | Wiese, div. Obstbäume, 3 große Fichten |
- Bungalow am hinteren Ende des Grundstücks
- Bungalow Raum hinten
- Bungalow vorderer Raum
- Die Schlafzimmer, wie dieses der linken Wohnung, sind nach hinten orientiert. Blick durch die Küche zum Flur.
- Die Straße macht Platz für die Boote
- Egal mit welchem Verkehrsmittel ist man in kürzerster Zeit mitten in der Natur
- Einmal pro Stunde haben die Boote Vorfahrt
- Gewölbekeller und Feldsteinfundament
- Giebelkammer in der linken Haushälfte mit Blick auf den Kanal und die Brücke
- Giebelkammer rechts mit Kochgelegenheit und Kachelofen
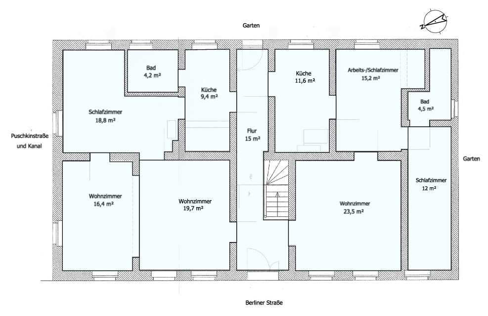
- Grundriss Zerpenschleuse
- Hinten angebaute Werkstatt
- Hof an der Zerpenschleuse 2
- Kochgelegenheit und Kachelofen in der rechten Giebelkammer
- Konsumzimmer
- Küche der rechten Wohnung mit alter Kochmaschine
- Küche links, Blick in Schlafzimmer und Bad
- Küche rechts, Blick zum Garten und ins Alkovenzimmer
- Massive Treppe in den Keller vom Flur aus
- Nordgiebel vom Kanal aus gesehen
- Pavillion an der Mauer zum Kanal
- Fahrradwerkstatt
- Blick von der Kanalbrücke zum Haus
- Raum im Durchgang des Stallgebäudes mit Blick auf das Wohnhaus
- Sommerküche hinterm Haus, Blick auf das Stall- und Werkstattgebäude
- Stall- und Lagergebäude
- Stiege zum Spitzboden
- Wohnhaus Südgiebel
- Wohnhaus und Stall Rückansicht
- Wohnzimmer der rechten Wohnung, Blick durch den Flur in den Konsumraum
- Zusammengelegtes Zimmer vorne links in welchem sich zwischenzeitlich der Konsum befand
- Küche der linken Wohnung mit altem Rauchhut
- Zusammengelegtes Zimmer vorne links in welchem sich zwischenzeitlich der Konsum befand
- Arbeits- und Alkovenzimmer mit Fenster zum Garten
- Auch im Spitzboden wäre ausreichend Platz für eine Nutzung
- Blick aus dem Alkoven, Tür zum Wohnzimmer, Kaminofen Tür zur Küche, Fenster zum Hof
- Blick in den Garten und zum Nachbarn aus dem Fenster der rechten, südlichen Giebelkammer
- Blick vom Flur zum Hof
- Blick von der Eigangstür durch den Flur zum Hof, links Tür zum Konsumzimmer, Treppe nach oben
- Bungalow am Ende des Gartens
Trotz gewissenhafter Erstellung des Exposés, kann es zu Irrtümern kommen. Eine Haftung dafür schließen wir ausdrücklich aus. Der Zwischenverkauf bleibt vorbehalten. Die Verhandlung mit dem Verkäufer sind stets freibleibend, vorbehaltlich des Zwischenverkaufs sowie vorbehaltlich der Zustimmung des Verkäufers. Schadensersatzansprüche aus Beratungs-, Finanzierungskosten etc. werden nicht anerkannt bzw. übernommen.








































