Nahezu original erhaltene Fabrikantenvilla in Luckenwalde
Herrschaftliches Anwesen, 35 Minuten von Berlin, mit guter Infrastruktur und nah an der Natur
Verkauft
Zusammenfassung
Eine Villa aus dem ausgehenden 19. Jh., mit Räumen von ausgesprochener Großzügigkeit und elaborierten Details von einer handwerklichen Qualität, wie sie heute kaum zu bezahlen wären. Gelegen im Zentrum einer Kleinstadt, die sich gerade hübsch gemacht und kurz davor sein dürfte, populär zu werden. Gelegen inmitten schöner Naturlandschaften mit einem hohen Freizeit- und Erholungswert und gleichzeitig keine 40 Bahnminuten vom Zentrum Berlins (Potsdamer Platz) entfernt.
Die denkmalgeschützte, weitgehend original erhaltene Villa wurde seit der Wende umfassend saniert und modernisiert und befindet sich in einem sehr guten Zustand. Auf den zwei Stockwerken mit ca. 450 m² Wohnfläche fänden zwei und mit überschaubarem Aufwand auch drei oder vier separate Wohneinheiten Platz. Der Garten auf dem ca. 1.900 m² großen Grundstück ist parkartig angelegt. Haus und Garten befinden sich in einer Anwohnerstraße unweit des Zentrums von Luckenwalde. Ein umfassendes Angebot an Schulen, Freizeiteinrichtungen und Einkaufsmöglichkeiten ist fußläufig zu erreichen. Nach kaum mehr als 5 Minuten Fahrradfahrt befindet man sich mitten in der schönen Natur des Elsthals.
English Summary
A late 19th century mansion, with very spacious rooms and elaborate original details, made with a craftsmanship almost unaffordable today. Situated in the center of a recently brushed up quaint small town which is probably on the verge of becoming popular, amidst a beautiful landscape with a high recreational value and at the same time only 40 minutes by train from central Berlin (Potsdamer Platz).
The listed villa is preserved in largely original state. Since German reunification it has been thoroughly renovated and modernized and is today in a very good condition. The inhabitable area of 450 m² can very easily be divided into two separate units, and without too much effort even into three or four units. The plot has a size of about 1,900 m². The garden with several tall trees resembles a park. The place lies in a calm residential area close to the centre of Luckenwalde. A comprehensive offering of schools as well as recreational and shopping facilities can be found within walking distance. After a bike ride of hardly more than five minutes one will be in the beautiful natural landscape of the Elsthal.
|
|
|
|
Baujahr |
1893 |
|
Wohngebäude |
2-geschossig |
|
Wohnfläche |
ca. 450 m² |
|
Nutzfläche im Keller und in der Garage |
ca. 210 m² |
|
Heizung |
Gaszentralheizung, Kachelofen, Infrarotheizungen |
|
Energie |
Anschluss an das öffentliche Elektrizitäts- und Gasnetz |
|
Wasser / Abwasser |
Kommunale Wasserversorgung und Abwasserentsorgung |
|
Endenergiebedarf |
Denkmalschutz, kein Energieausweis notwendig |
|
Internet |
DSL mit16 Mbit, VDSL mit 100 Mbit in naher Zukunft; |
|
Grundstücksfläche |
1898 m² |
|
Beschaffenheit |
Eben |
| Bewuchs |
Große alte Parkbäume, Sträucher, Rasenfläche |
|
Bezug |
kurzfristig bezugsfrei |
- Diele, Blick zur Haupteingangstür und Marmortreppe
- Marmortreppe zur Diele
- Die ehemalige Küche zwischen den Eingängen
- Blick vom großen zentralen Zimmer zum Ost-Zimmer
- Zentrale Küche
- Heutige Küche mit Fenster zur Straße
- Funktionsfähiger Kachelofen in der Küche
- Großes Zimmer mit Tür zur Terrasse und Blick in den Garten
- Blick ins Loft-Bad
- Ost-Zimmer
- Terrasse zum Garten
- Ansicht aus der östlichen Ecke des Gartens
- Erker- bzw. Turmzimmer im EG
- Angestrichener Ofen im westlichen Turmzimmer
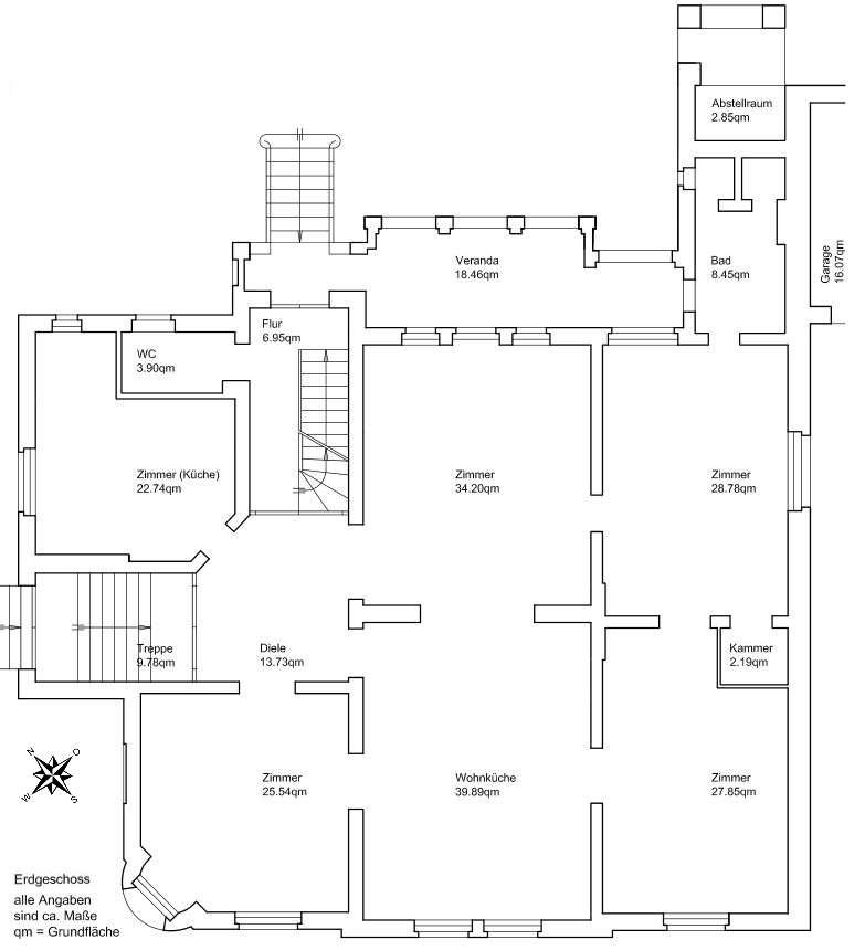
- Grundriss EG
- Treppenhaus, Blick zur Diele
- Treppenhaus im OG
- Turmzimmer im OG
- Loft, mit kleinen Fenstern zur Straße
- Neues Loft im OG
- Blick aus der Loft im OG in den Garten
- Blick aus dem straßenseitigen Süd-Zimmer in das gartenseitige Ost-Zimmer
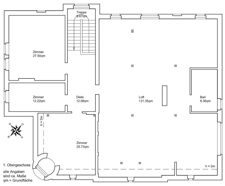
- Grundriss OG
- Trockener Keller mit Gewölbedecken
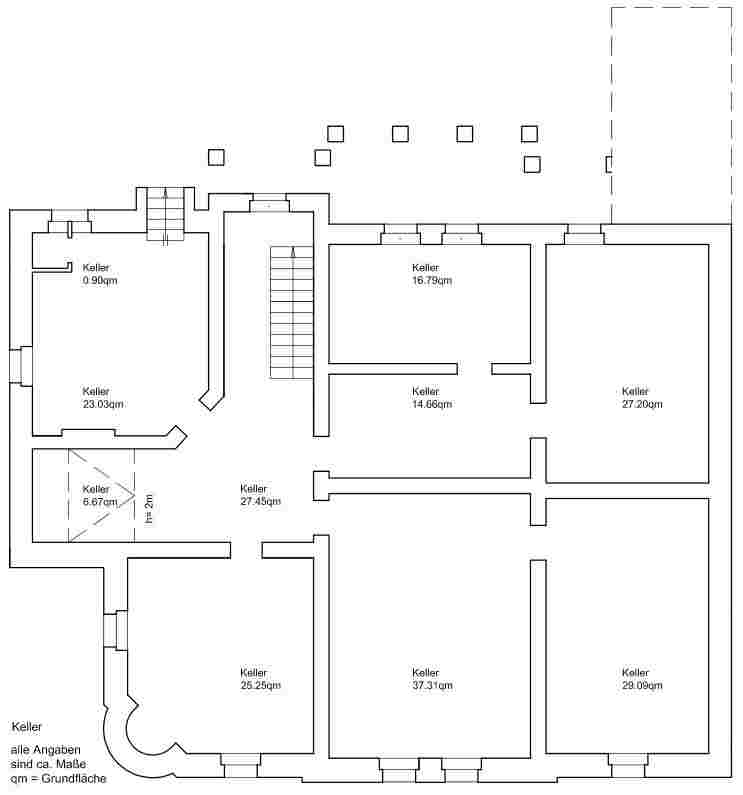
- Grundriss Keller
- Terrasse vom Garten
- Villa Gartenseite
- Villa mit parkartigem Garten
- Historische Aufnahme der Villa Steinberg
- Straßenfront
- Straßenfront von Süden
Trotz gewissenhafter Erstellung des Exposés, kann es zu Irrtümern kommen. Eine Haftung dafür schließen wir ausdrücklich aus. Der Zwischenverkauf bleibt vorbehalten. Die Verhandlung mit dem Verkäufer sind stets freibleibend, vorbehaltlich des Zwischenverkaufs sowie vorbehaltlich der Zustimmung des Verkäufers. Schadensersatzansprüche aus Beratungs-, Finanzierungskosten etc. werden nicht anerkannt bzw. übernommen.

































