Selbstversorgerhof in Alleinlage im Norden der Uckermark
Eine kleine Ranch am Rande der pommerschen Prärie
VERKAUFT
Zusammenfassung
Auf der einen Seite eine hügelige, von kleinen Seen durchzogene Endmoränenlandschaft, welche den schönsten Ecken der Uckermark in nichts nachsteht. Auf der anderen Seite die flachen, weitgehend naturbelassenen, waldreichen Weiten der pommerschen Prärie im Randowtal mit ihren großen Rinderherden. Dazwischen dieses Grundstück, welches beide Landschaften auf 6,6 Hektar in sich vereint und alles bietet um weitgehend autark vom Land zu leben – wenn man es denn möchte. Es sind 6,6 Hektar mit Feld, Wald, Wiesen, einem Obstgarten, und einem Teich, in deren Mitte ein funktionaler Hof mit einem schönen roten Backstein Bauernhaus aus dem 19ten Jh. steht. Dort stehen gut 200 m² Wohnfläche zur Verfügung, in den umliegenden Nebengelassen noch einmal geschätzte gut 500 m² Nutzfläche. Teil des Angebots ist auch die Photovoltaikanlage auf den Dach der neuen Halle mit einem möglichen eigenständigen Marktwert von weit über 60.000 €.
Zum Alexanderplatz fährt man ca. 1¾ Stunden. Die polnische Großstadt Stettin liegt gleich hinter der Grenze. Der nächste Bahnhof mit Fernbahnanschluss ist im 20 km entfernten Pasewalk, der nächste größere Sandstrand 35 km entfernt am Oderhaff. Touristisch ist die Gegend vor allem für Reiter, Radfahrer, Jäger und Naturliebhaber erschlossen. Aber auch das nächste Schlosshotel mit Golfplatz liegt keine 15 km entfernt in Krugsdorf. Und trotzdem, ist es eine sehr ruhige und abgelegene Ecke.
English Summary
On the one side there lies a hilly, lake spotted landscape, comparable to the most beautiful parts of the Uckermark. On the other side the wide well-wooded expands of the Pommeranian Prairie in the Randow Valley, with their large cattle herds. In-between this plot which combines both landscapes on 6.6 hectares ha (16 acres) of land and offers everything for a self-sustained existence off that land. 6.6 hectares with field, forest, pasture, an orchard and a pond. In the midst a functional homestead with an old red-brick farmhouse from the 19th century. It offers over 200 m² of living space. An estimated additional 500+ m² of floor space are available in the surrounding buildings. Part of the offer are the photovoltaic cells on the roof of the new hall, with a possible separate market value of well above 60.000 €.
A drive to Berlin Alexanderplatz will take about 1¾ hours. The major polish city of Szczecin lies just behind the border. The next train station with intercity connection is 20 km away in Pasewalk, the next larger sandy beach 35 km at the shore of the Oderhaff. The region is of touristic interest for cyclists, horsemen, hunters and nature lovers in general. However the next stately home with a hotel and an affiliated golf course is only 14 km away in Krugsdorf. And still it is a quiet and remote corner.
|
|
|
|
Wohngebäude |
1-geschossig mit ausgebautem Dachgeschoss und nicht ausgebautem Spitzboden |
|
Baujahr |
ca. 1850 |
|
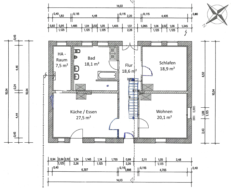
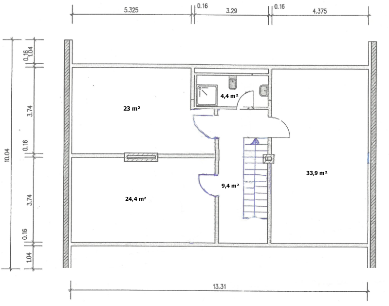
Wohnfläche |
ca. 206 m² |
|
Nutzfläche |
ca. 500 m² |
|
Nebengebäude |
Maschinenhalle mit Kühllager und Werkstatt, Stallgebäude, Wirtschaftsgebäude mit Brotbackofen und Futterküche, Hühnerstall, Scheune |
|
Heizung/Warmwasser |
Zentralheizung, basierend auf Festbrennstoffen (Holz) und Solarthermie, Kaminofen, Kachelofen |
|
Energie |
Photovoltaikanlage, Anschluss an das öffentliche Stromnetz |
|
Endenergiebedarf |
wird erstellt |
|
Wasser/Abwasser |
Brunnen / Dreikammergrube |
|
Internet |
DSL 16 Mbit |
|
Grundstücksfläche |
65.953 m² |
|
Beschaffenheit |
Nach Südwesten leicht abfallend mit ca. 350 m² großem Teich |
|
Bewuchs |
Rasen, Obstgarten, Pferdekoppeln, Wiese mit Ziegenhaltung, Feld, Mischwald |
|
Bezugsfrei ab |
nach Absprache auch kurzfristig |
- Die Auffahrt zum Haus
- Am Ende der Auffahrt
- Teich hinter derm Haus
- Die alte Eingangstür
- Die alte Eingangstür
- Die Kochmaschine heizt auch das Wasser
- Blick von der Küche über den Flur ins Wohnzimmer
- Die Wonzimmertür
- Wohnzimmer mit Kaminofen
- Schlafzimmer mit Kachelofen
- Das große Bad
- Die gemauerte Dusche
- Treppe ins 1. OG
- Kinderzimmer nach Süden
- Bad im 1. OG
- Alter Apfelbaum
- Die neue Maschinenhalle und der Stall
- Maschinenhalle und Stall
- Der neue Stall
- Der Brotbackofen
- Wirtschaftsgebäude mit Brotbackofen
- Der Hühnerstall
- Scheune und Unterstand
- Bienenstock
- Blick zur Auffahrt
- Blick von der Auffahrt über die Ebene
Trotz gewissenhafter Erstellung des Exposés, kann es zu Irrtümern kommen. Eine Haftung dafür schließen wir ausdrücklich aus. Der Zwischenverkauf bleibt vorbehalten. Die Verhandlung mit dem Verkäufer sind stets freibleibend, vorbehaltlich des Zwischenverkaufs sowie vorbehaltlich der Zustimmung des Verkäufers. Schadensersatzansprüche aus Beratungs-, Finanzierungskosten etc. werden nicht anerkannt bzw. übernommen.































