Ausgezeichneter Hof in Holzbauweise in der Uckermark

Angebotspreis: 640.000 €
Provision
Die Käuferprovision in Höhe von 3,4 % des Verkaufspreises inkl. 19 % gesetzlicher MwSt. ist im Kaufpreis nicht enthalten und von den Käufern bei notarieller Beurkundung zu zahlen.
Zusammenfassung
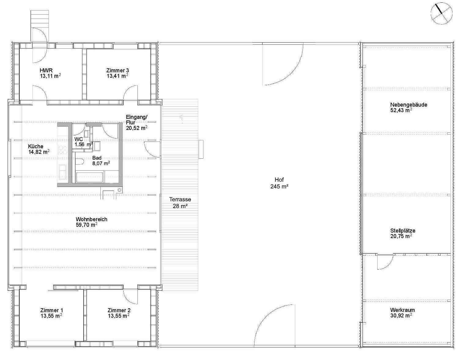
In Fahrradentfernung zum gut angebundenen Fernbahnhof in Angermünde liegt dieser kleine Hof mit ca. 140 m² Wohnfläche auf einem ca. 5.450 m² großen Grundstück am Übergang der uckermärkischen Endmoränenlandschaft zur weiten und hier tief eingeschnittenen Naturlandschaft des Odertals.
Der Hof ist ein gut gelungenes, sehr bewohnenswertes und aus gutem Grund prämiertes Beispiel zeitgenössischer ländlicher Architektur. Seine geschlossene Form vermittelt Schutz in der weiten Landschaft. Das warme Braun des Holzes im sonnendurchfluteten und sehr großzügigen Inneren kontrastiert mit dem klaren Blau des riesigen uckermärkischen Himmels darüber.
Ein Wirtschaftsgebäude auf der Hofseite gegenüber bietet zusätzlichen Raum (105 m²) und sollte bei Bedarf in weiteren Wohnraum umgewidmet werden können.
English Summary
Within cycling distance of the well-connected long-distance railway station in Angermünde, this small farmstead offers approximately 140 m² of living space on a plot of about 5,450 m². It is situated at the transition from the Uckermark terminal moraine landscape to the wide—and here deeply incised—natural scenery of the Oder Valley.
The property is a well-executed, highly livable, and award-winning example of contemporary rural architecture. Its enclosed form provides a sense of shelter within the expansive landscape. The warm brown of the wood in the light-filled, generously proportioned interior contrasts with the clear blue of the vast Uckermark sky above.
A farm/utility building on the opposite side of the courtyard offers additional space (105 m²) and could, if needed, be converted into further living area.
| Wohnhaus | Eingeschossiger Niedrigenergie– / Holzbau |
| Wohnfläche | ca. 155 m² |
| Nebengebäude | Eingeschossiger Holzbau auf massiver Bodenplatte mit ca. 105 m² Nutzfläche |
| Baujahr | 2012 |
| Grundstücksfläche | 4.815 m² laut Grundbuch |
| Heizung | Erdgas Brennwerttherme, Grundofen |
| Energie | Elektrizitätsanschluss, Erdgasanschluss |
| Endergiebedarf | Energieausweis wird erstellt |
| Wasser / Abwasser | Anschluss an öffentliche Trinkwasserver- und Abwasserentsorgung |
| Internet | 100 Mbit DSL, Glasfaser möglich, 5G LTE, |
| Bewuchs | Blumenwiese, verschiedene Obstbäume, Stauden & Büsche |
| Schutzgebiete | Landschaftsschutzgebiet, am Rande des Nationalparks Unteres Odertal |
Trotz gewissenhafter Erstellung des Exposés, kann es zu Irrtümern kommen. Eine Haftung dafür schließen wir ausdrücklich aus. Der Zwischenverkauf bleibt vorbehalten. Die Verhandlung mit dem Verkäufer sind stets freibleibend, vorbehaltlich des Zwischenverkaufs sowie vorbehaltlich der Zustimmung des Verkäufers. Schadensersatzansprüche aus Beratungs-, Finanzierungskosten etc. werden nicht anerkannt bzw. übernommen.
































