Ein Holzhaus wie ein Möbelstück
Am Fuße der Oderhänge mit großartigem Blick ins Naturschutzgebiet
Verkauft
Provision
Zusammenfassung
Es stimmt alles: Der ruhige, sich aber gut entwickelnde Ort liegt am Ende der Straße in einer der landschaftlich schönsten Ecken, zwischen Oderhängen und Oderebene im Nationalpark Unteres Odertal. Er ist gut zu erreichen und im nahen Angermünde existiert eine ordentliche Infrastruktur. Das 1.506 m² große Grundstück in Hanglage liegt am Ortsrand und ist nach Süden ausgerichtet. Durch die großen Fenster und von der Terrasse des Hauses blickt man über ein kleines, ansonsten nur schwer zugängliches Fließ auf einen geschützten Laubwald und in die Weite der Oderebene. Das zweistöckige Haus mit ca. 132 m² Wohnfläche wurde konsequent und in höchster Ausführungsqualität nach baubiologischen und energetischen Gesichtspunkten in Holzrahmenbauweise mit Lehminnenwänden erstellt. Was will man mehr?
English Summary
It’s a ten out of ten: the quiet village lies at the end of the road, in one of the prettiest landscapes, tugged between the slopes of the Oder-Valley and the river planes, in the lower Oder-Valley National Park. It can be reached conveniently and all main public amenities are present in the nearby town of Angermünde. The sloped plot with a size of 1,506 m² is facing south. Through the large windows and from the from the Terrace one gazes across the valley of a creek to a listed deciduous forest on the other side and to the wide open river planes. The two storied house was constructed with regards to maximum built quality and low running costs exclusively from ecologically safe materials. It is a wood frame construction with the inner walls made from clay. What else is there to wish for?
| Grundstücksfläche | 1.506 m² |
| Baujahr | 2017 |
|
Wohngebäude |
2-stöckig, errichtet in Holzrahmenbauweise mit Innenwänden aus Lehm |
| Wohnfläche |
132 m² |
| Nebengebäude | zwei Geräteschuppen |
| Heizung | zwei Grundöfen |
| Energie | Strom im Haus, Erdgasanschluss liegt straßenseitig an |
| Wasser / Abwasser | Zentrale Ver- bzw. Entsorgung |
| Endenergiebedarf | 52,79 kWh/(m2·a) |
| Internet | DSL mit bis zu 100 Mbit/s Down- und 40Mbit/s Upload |
| Beschaffenheit | Gebäude steht in Hanglage, Grundstück nach Süden ausgerichtet |
| Bewuchs | Wiese, teilw. alte Obstbäume, heimische Büsche, Stauden und Bäume |
- Im Hintergrund Burg und Wasserstraße, im Vordergrund bei den blühenden Obstbäumen das Haus
- Ostseite des Hauses, Blick nach Westen in Richtung der Oderhänge
- Blick in Richtung Odertal, links bei den blühenden Bäumen das Verkaufsobjekt
- Ansicht von Süden, im Hintergrund der Storch in seinem Nest sowie der Turm oder Grützpott
- Blick in die Wildniss
- Wohnzimmer im Sommer
- Die Küche im OG verbleibt im Haus, in der Mitte der Grundofen, rechts im Hintergrund das durch das Glas der Eingangstür tretende Licht
- Eichendielenboden
- Bad
- Der Abstrahlkörper des Grundofens im Badezimmer im OG erwärmt Bad und Schlafzimmer
- Blick aus dem Schlafzimmer
- Blick aus dem Atelier im EG im Sommer
- Der Grundofen im Atelier im EG
- Werkstatt im EG
- Blick aus der Werstatt im EG, links wo die Waschmaschine steht, würde das zweite Bad hinkommen
- Unter der Terrasse im Frühling
- Holzhaus Ansicht Süd
- Holzhaus Ansicht West
- Holzhaus Ansicht Ost
- Holzhaus Ansicht Nord
- Grundriss EG
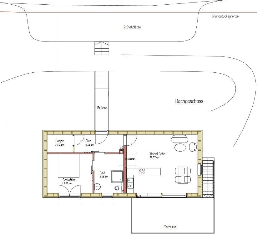
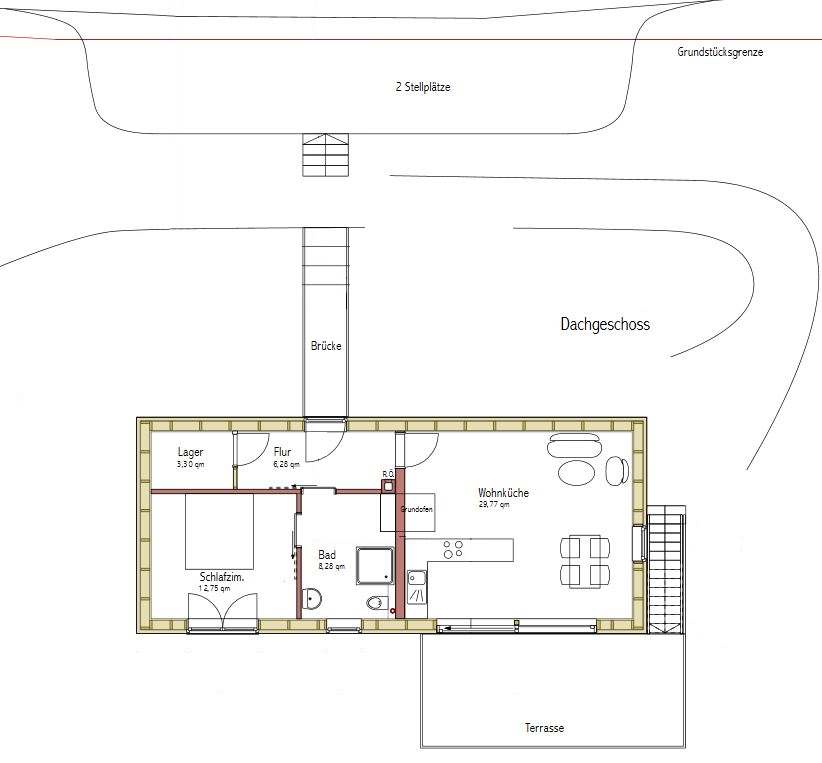
- Grundriss OG
- Auf der Terrasse im Frühling
- Blick von der Terrasse zu den Oderhängen im Westen
- Obstbaumdschungel mit Gartenterrasse im Sommer
- Terrasse mit Brennholzvorrat
- Haus mit Terrasse, Blick in Richtung Oder im Frühling
Trotz gewissenhafter Erstellung des Exposés, kann es zu Irrtümern kommen. Eine Haftung dafür schließen wir ausdrücklich aus. Der Zwischenverkauf bleibt vorbehalten. Die Verhandlung mit dem Verkäufer sind stets freibleibend, vorbehaltlich des Zwischenverkaufs sowie vorbehaltlich der Zustimmung des Verkäufers. Schadensersatzansprüche aus Beratungs-, Finanzierungskosten etc. werden nicht anerkannt bzw. übernommen.




























