Schaufenster zur Dorfstraße in der Prignitz
Als Ferienhaus genutzter Dorf-Konsum mit schönem und großem Grundstück
Verkauft
Zusammenfassung
Ca. 150 km westlich von Berlin, genau zwischen Hamburg und der Hauptstadt, liegt das kleine und beschauliche Straßendorf mit seinen 77 Einwohnern. Umringt von alten Backsteinhäusern und Vierseithöfen steht ein, in den vergangenen 13 Jahren als Wochenendhaus genutzter, ehemaliger kleiner Dorf-Konsum. Das vermutlich in den 70er Jahren errichtete Haus ist in einem ordentlichen Zustand ohne erkennbaren dringenden Sanierungsbedarf. Es hat eine Wohnfläche von etwa 90 qm² und befindet sich auf einem nahezu uneinsehbaren, ländlichen Grundstück von ca. 4.600 qm². Eingegrenzt von Obstbäumen, alten Eichen und Kornfeldern bietet das Grundstück nicht nur viel Privatsphäre, sondern auch Ruhe und Raum um sich zu entfalten.
English Summary
In a pretty little village a 150-km drive west of Berlin and equally far east of Hamburg, surrounded by old redbrick houses and four-sided homesteads stands the small former village shop. It served as a weekend home in the past 13 years. The house was probably errected in the 70s and is in a reasonable condition without any obvious imminent need for rehabilitation. It has a living space of about 90 sqm and is located on a 4.650 sqm property. Lined by fruit trees, old oak trees and cornfields and shielded from most views, the property offers a lot of tranquility, privacy and space.
|
|
|
|
Wohngebäude |
1-geschossig, mit nicht ausgebautem Dachboden |
|
Baujahr |
1973 |
|
Nebengebäude |
Stallgebäude, großes Holzlager/Carport |
|
Wohnfläche |
ca. 90 m² |
|
Nutzfläche |
gut 300 m² |
|
Heizung |
Kaminofen |
|
Energie |
Anschluss an das öffentliche Elektrizitätsnetz |
|
Wasser / Abwasser |
zentrale Versorgung/abflusslose Grube |
|
Endenergiebedarf |
Energieausweis noch nicht erstellt |
|
Internet |
VDSL mit 100 Mbit, 4G/LTE mit bis zu 50 Mbit |
|
Grundstücksfläche |
4.650 m² |
|
Beschaffenheit |
eben |
|
Bewuchs |
Wiese, Sträucher, Obstbäume, mehrere alte Eichen |
|
Bezugsfrei |
kurzfristig |
- Dorfstraße
- Schaufenster zu Straße
- Großer ehemaliger Verkaufsraum mit Kaminofen
- Großer ehemaliger Verkaufsraum
- Küche im großen Raum
- Grundstück hinter dem Haus, Scheune auf dem Nachbargrundstück
- Bad
- Hoher Dachboden
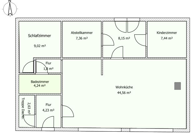
- Grundriss
- Hinteres Ende des Grundstücks mit Blick über die Felder
- Feldweg hinter dem Grundstück
Trotz gewissenhafter Erstellung des Exposés, kann es zu Irrtümern kommen. Eine Haftung dafür schließen wir ausdrücklich aus. Der Zwischenverkauf bleibt vorbehalten. Die Verhandlung mit dem Verkäufer sind stets freibleibend, vorbehaltlich des Zwischenverkaufs sowie vorbehaltlich der Zustimmung des Verkäufers. Schadensersatzansprüche aus Beratungs-, Finanzierungskosten etc. werden nicht anerkannt bzw. übernommen.












